IŠNUOMOTA!Nuomojamas butas Plytinės g. 29, Antakalnyje, Vilniuje, 67 kv.m ploto, 2 kambariai
Nuomojamas butas Plytinės g. 29, Antakalnyje, Vilniuje, 67 kv.m ploto, 2 kambariai
Plytinės g. Vilniaus m. sav. Vilniaus m. Antakalnis
IŠNUOMOJAMAS labai ramioje vietoje, šalia miško PILNAI ĮRENGTAS – 2 k. Butas (67 kv. m) 2 ERDVŪS BALKONAI SU NUOSTABIU VAIZDU Į PUŠYNĄ!!! Plytinės g.29, Antakalnyje.
JOKIO TARPININKAVIMO MOKESČIO NĖRA !!!
PASIRAŠOMA NUOMOS SUTARTIS (minimalus nuomos terminas 1 metai.);
• 2 ERDVŪS BALKONAI LEIS MĖGAUTIS RYTINE KAVA, AR VAKARE MĖGAUTIS RAMYBE, PAUKŠČIŲ ČIULBĖJIMU IR GRYNU ORU;
• NETOLI MIESTO CENTRAS AR PAGRINDINIAI PREKYBOS CENTRAI, MOKYKLOS, DARŽELIAI…
• IDEALIOS SĄLYGOS MĖGSTANTIEMS GAMTĄ, AKTYVŲ GYVENIMO BŪDĄ – ŠALIA NAMŲ MIŠKAI, TAKELIAI BĖGIOJIMUI, DVIRAČIAMS, ŽYGIAMS.
BENDRA INFORMACIJA
Adresas: Plytinės g. 29, Vilnius (Antakalnis)
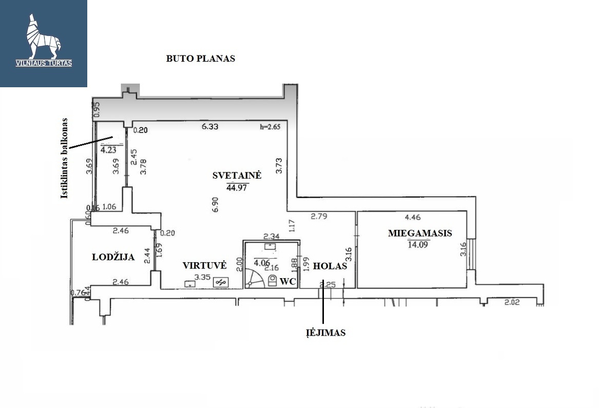
Bendras plotas: 67 kv. m;
Aukštai: 1 iš 6;
Kambarių sk.: 2;
Namo tipas: mūrinis;
Šildymas: Centrinis kolektorinis su individualia apskaita;
Statybos m. 2006 m.;
Įrengimas – Pilnai įrengtas
KAMBARIŲ APDAILA IR ĮRENGIMAS:
Grindys – natūralaus medžio parketo grindų danga, vonioje ir koridoriuje – plytelės;
Sienos – dažytos;
Langai — plastikiniai orientuoti į rytinę ir vakarinę pusę.
Įėjimo į butą durys — šarvo tipo; vidaus- medinės durys.
BUITINĖ TECHNIKA
Gartraukis, šaldytuvas, indaplovė, stiklo keramikos kaitlentė, orkaitė, skalbimo mašina.
KOMUNIKACIJOS IR KITA INFORMACIJA:
Šildymas (Centrinis kolektorinis su individualia apskaita, skaitikliu ). (11 mėn. 62 Eur. ; 12 mėn. – 80 Eur.; 01 mėn. 147 Eur.).
Elektra (yra naktinis ir dieninis tarifas) – mokesčiai priklauso nuo suvartojamo kiekio.
Į butą atvestos visos pagrindinės komunikacijos – internetas, kabelinė televizija.
Namą administruoja (“ADMI”) – papildomi mokesčiai mėnesiui apie 60 Eur. (gyva apsauga ~20 Eur.; ir kt. paslaugos);
PARKAVIMAS
• Erdvus kiemas, kuriame visada rasite vietą automobiliui;
SAUGUMAS:
• Namo saugumas – Visą parą teritorija stebima video kameromis.
• Rakinama labai tvarkinga laiptinė su domofonu;
VIETA IR INFRASTRUKTŪRA:
• Namas randasi ramioje vietoje, šalia miškas
• Patogus susisiekimas tiek visuomeniniu tiek asmeniniu transportu. Šalia viešojo transporto stotelė.
Už ~150 m kursuoja 18 ir 38 maršruto autobusai. ~ 700 m iki troleibusų sustojimo (kursuoja 4G; 5G; 2,14,19 ir kt. maršrutai)
• Puikus susisiekimas su miesto centru ir kitais Vilniaus miesto rajonais.
• Didelė vaikų žaidimo aikštelė, supynės, hamakai
• Tinklinio, krepšinio ir futbolo žaidimo vietos, metaliniai sportiniai treniruokliai;
• PC „IKI“ , PC „LIDL“,PC „MAXIMA“.
——————————————————
Ši miesto dalis žavi tuo, kad aplink nėra jokių kitų daugiaaukščių ir gyvenamųjų kvartalų – pravažiuoji modernėjantį, jaunatvišku entuziazmu pulsuojantį Saulėtekio miestelį su kavinukėmis, moderniomis bibliotekomis – dar keli šimtai metrų ir tu – miškų zonoje – pabėgai iš miesto, papuolei į kitą erdvę – „stress free zone“ (jokio streso).
Jei iškilo klausimų dėl šio būsto, ar tiesiog norite pasitarti dėl nekilnojamojo turto, skambinkite:
VAIVA KELEČIENĖ
Mob. + 370 688 57 032
www.BrokereNT.lt
Papildoma informacija
- Balkonas
- Buitinė technika
- Kodinė laiptinės spyna
- Langai su stiklo paketais
- Parketas
- Skalbimo mašina
- Su baldais
- Virtuvė sujungta su kamb.
PLANUOK APŽIŪRĄ
- Objekto ID:
- 193604
- Veiksmas:
- Nuoma
- Kambarių sk.:
- 2
- Aukštas:
- 1
- Aukštų sk.:
- 6
- Pastatas:
- Mūrinis
- Metai:
- 2006
- Įrengimo lygis:
- Visa apdaila
- Šildymas:
- Miestas
- Plotas, m²:
- 67.0










