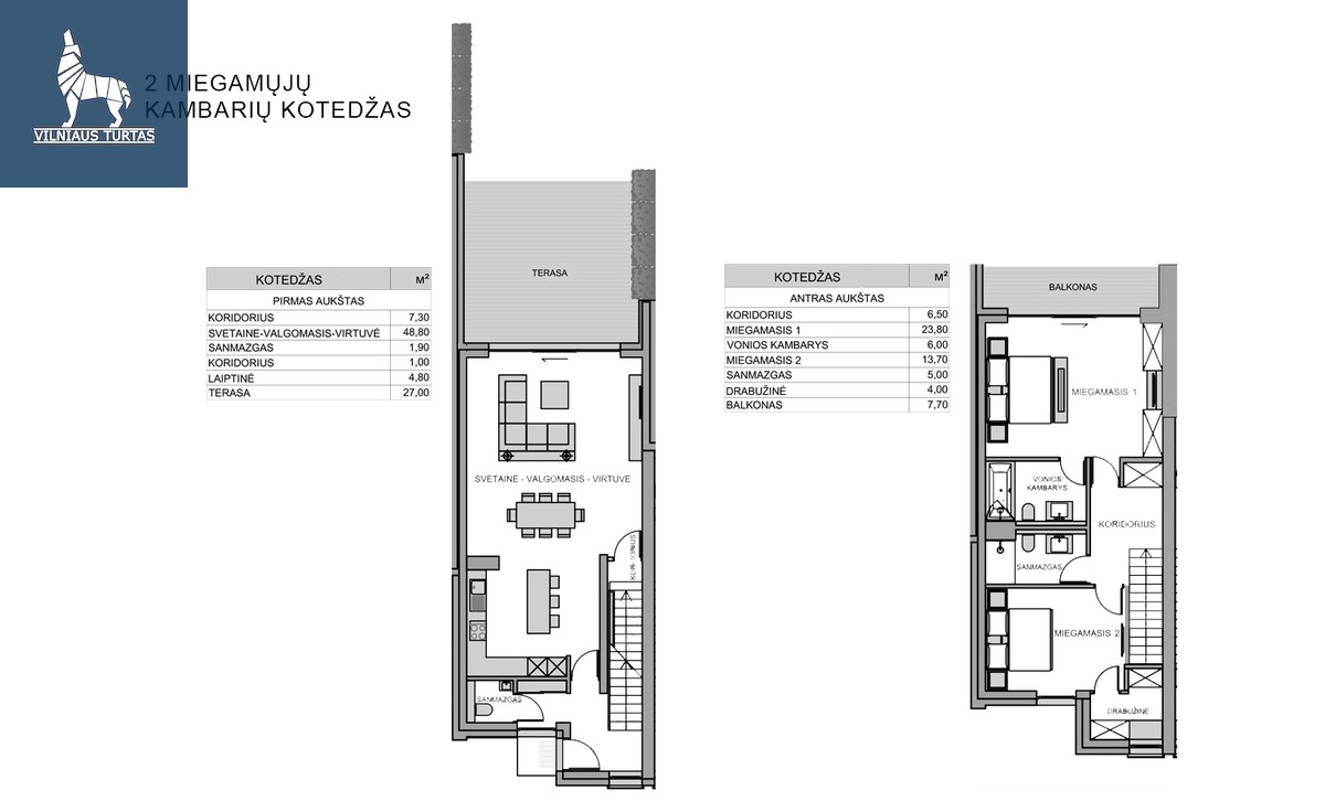
Parduodamas kotedžas Gardenijų g. , Masionių vs., 127.89 kv.m ploto, 2 aukštai
Parduodamas kotedžas Gardenijų g. , Masionių vs., 127.89 kv.m ploto, 2 aukštai
Masionių vs. Gardeniju g. Vilniaus r. sav.
✨✨✨ATVIRŲ NAMŲ DIENA!✨✨✨
Ateikite, apžiūrėkite ir įsivaizduokite save čia, gal pajausit, kad tai gali būti Jūsų naujos istorijos pradžia 🌿🌿🌿
🏡Laukiame svečiuose:
11-20 | 12-17 val. arba
11-22 | 12-17 val.
📍 Adresu: Masionių vs., Gardenijų g.
📞Registracija: +37065242188
🌿Parduodami apartamentai išskirtiniame projekte VILLON HOMES.
Tai ne tik būstas – tai vieta, kur kasdienybė persipina su poilsiu.
Čia gamta ir komfortas gyvena greta: rytus pasitinka žaluma, o vakarus – ramybė ir tylūs pasivaikščiojimai po parką.🌿
Išties unikali vieta – gyvendami VILLON HOMES jausitės lyg nuolat nesibaigiančiose atostogose. Projekto kūrėjai apgalvojo viską: įrengtos vaikų žaidimų ir sporto zonos, čia pat ežerai, miškai ir parkai, išplėtota infrastruktūra, 24/7 saugoma teritorija bei teikiamas administravimas. O svarbiausia – patogus ir greitas susisiekimas su įvairiais Vilniaus mikrorajonais.
Projekte planuojama statyti darželį bei mokyklą.
VILLON HOMES – vienintelis tokio tipo projektas visoje Lietuvoje!
✨✨✨Laukia išskirtiniai privalumai projekto gyventojams!✨✨✨
✨Privalumai:
✓ Įsikelkite ir gyvenkite iš karto – kotedžai parduodami su baldais ir buitine technika;
✓ Nesukite galvos dėl automobilio parkavimo – į kainą įskaičiuota parkavimo vieta (14,83 kv.m.) esantį cokoliniame pastato aukšte ir erdvus sandėliukas;
✓ Kotedžams priklauso vidinis kiemas su terasa ir veja;
✓ Atskira drabužinė, kambariuose papildomai įmontuotos erdvios drabužių ir daiktų spintos;
✓ Namuose įdiegta sistema “protingas namas”, kurios pagalba savarankiškai galėsiete kontroliuoti savo namų šildymo sistemą, apšvietimą, kondicionavimo, rekuperacijos ir signalizacijos sistemas. Jos pagalba kiekviename kambaryje galima sukurti atskirą mikroklimatą;
✓ Londono architektų studijos dizainerių sukurti ir įrengti projekto apartamentai, įrengimui naudotos tik kokybiškos medžiagos, visur natūralus medis: vitrininių langų rėmai, parketlentės, vidaus durys, laiptai ir turėklai;
✓ Iki miesto ribos vos kelios minutės, artimiausias prekybos centras (IKI) už 5min., o miesto centrą – Vilniaus Katedrą, pasieksite per 20 minučių.
✨Komunikacijos:
・Šviesolaidinis internetas ir televizija;
・Kanalizacija – rajono centrinis valymo įrenginys;
・Aplinkos tvarkymas – vejos pjovimu, želdynų priežiūra ir šiukšlių išvežimu rūpinasi profesionali komanda. Buitinių nesklandumų atveju Jums padės dienos metu budintys stalius, santechnikas ar elektrikas.
✨Projekto privalumai:
Tik projekto gyventojams suteikiamos išskirtinės galimybės naudotis VILLON CITY miesto teikiamomis paslaugomis ir patogumais, kurie leis atsipalaiduoti ir visą dėmesį skirti tik tam kas tikrai svarbu:
✨ Kas dvi valandas iš viešbučio kursuoja gyventojams NEMOKAMAS mikroautobusas iki miesto ir atgal;
✨Teritorijos saugumu rūpinasi kiaurą parą budinti gyva apsauga.
✨Teritorija prižiūrima čia pat esančios ir per trumpiausią laiką reaguojančios administravimo įmonės. Žolės pjovimas, sniego valymas, augmenijos laistymas ir kt. – viskuo pasirūpina įmonė;
✨Teritorijoje esantys trys natūralūs ežerai ir tvenkinių bei kanalų tinklas leidžia naudotis vandens teikiamais privalumais;
✨Teritorijoje jau veikia kelios vaikų žaidimo zonos, bei planuojamas įkurti parkas su gyvūnais.
✨Teritorijoje įrengti teniso kortai, pasaulinės klasės golfo aikštynas, krepšinio aikštelė, galimybė pasiplaukioti baidarėmis arba išbandyti vandens atrakcionus viename iš teritorijos ežerų. Gyventojams išskirtinėmis teisėmis prieinamas baseinas viešbučio teritorijoje, taip pat sporto salė viešbučio teritorijoje taupys jūsų brangų laiką.
✨ „The V SPA“ – modernus vandens procedūrų, grožio ir sveikatos centras, 5 restoranai, SPA kavinė ir baras šalia jūsų namų.
✨Ir dar begalės kitų privalumų!
Ši vieta laukia naujų šeimininkų, kurie vertina kokybę, ramybę ir gamtos artumą. Atvykite, pasivaikščiokite po teritoriją – galbūt čia atrasite savo namus. 🌿
📞Lauksiu jūsų skambučių! Turim kelis kotedžų pasirinkimus pagal dydį ir poreikį.
___________
Dėl apžiūros ar papildomos informacijos susisiekite:
Tel. +37065242188
dobrin@vilniausturtas.lt
Dirbame darbo dienomis ir savaitgaliais!
Svarstote apie savo nekilnojamojo turto pardavimą?
Susisiekite – įvertinsime ir pakonsultuosime NEMOKAMAI!
Daugiau parduodamų obektų:
https://www.vilniaus-turtas.lt/brokeris/dobrin-mitev/
Papildoma informacija
- Detalus planas
- Elektra
- Geras privažiavimas
- Internetas
- Kabelinė televizija
- Kondicionierius
- Langai su stiklo paketais
- Lauko terasa
- Parketas
- Rūbinė
- Signalizacija
- Skalbimo mašina
- Su baldais
- Televizorius
- Vietinė kanalizacija
- Virtuvė sujungta su kamb.
- Vonia
- Šaldytuvas
- Šalia vandens tvenkinio
- Šarvuotos durys
PLANUOK APŽIŪRĄ
- Objekto ID:
- 192613
- Veiksmas:
- Pardavimas
- Kambarių sk.:
- 2
- Aukštų sk.:
- 2
- Pastatas:
- Kotedžas
- Metai:
- 2017
- Įrengimo lygis:
- Visa apdaila
- Šildymas:
- Centrinis
- Plotas, m²:
- 127.89





