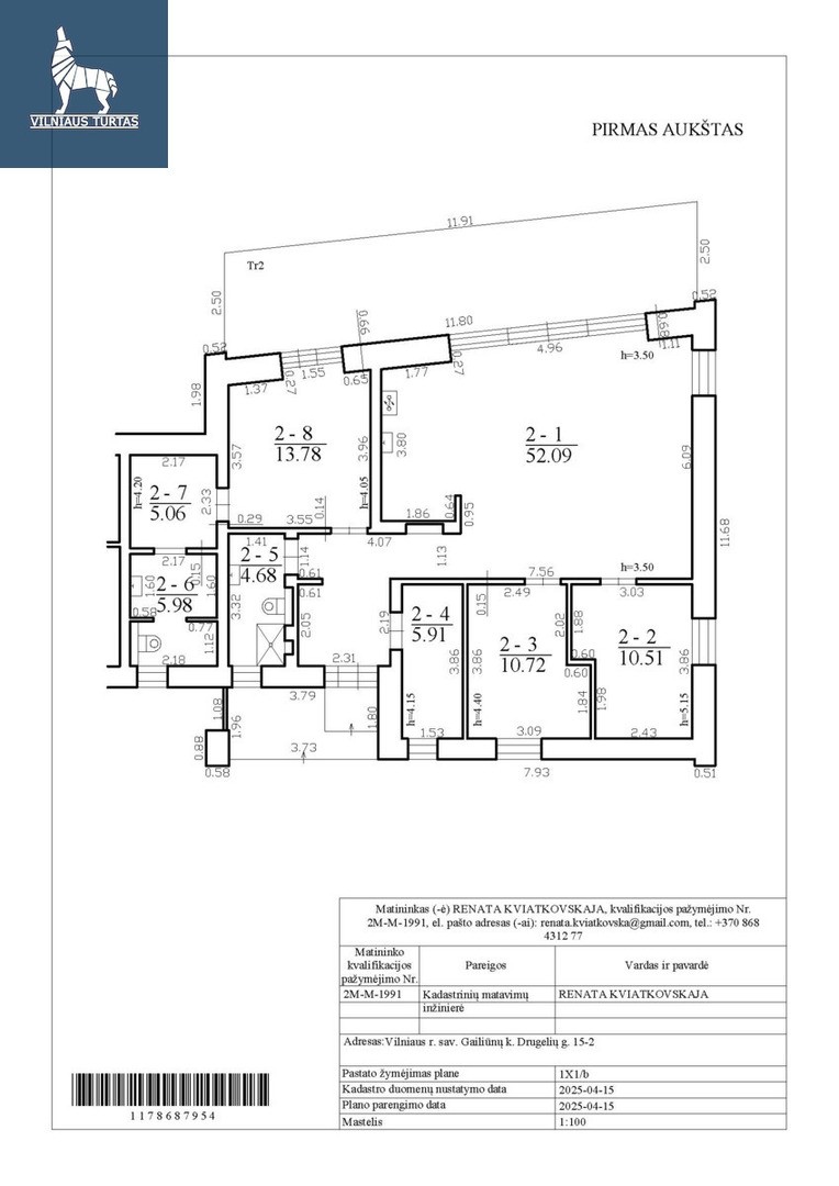
Parduodamas namas Gailiūnų k., 109 kv.m ploto, 1 aukštai

Kaina:
419 000€
(3 844€/m²)

Parduodamas namas Gailiūnų k., 109 kv.m ploto, 1 aukštai

Gailiūnų k. Drugelių g. Vilniaus r. sav.

PARDUODAMAS IŠSKIRTINIS, PRECIZIŠKAI ĮRENGTAS NAMAS GAMTOS APSUPTYJE NETOLI VILNIAUS
Parduodamas naujas, itin kokybiškai įrengtas namas, įsikūręs vaizdingoje ir ramioje vietoje, nenutolstant nuo Vilniaus centro. Puikus susisiekimas su visais miesto rajonais – patogiai pasieksite centrą ar kitus miesto taškus, išvengdami didžiųjų kamščių.
Namas buvo įrengtas sau, naudojant aukščiausios kokybės medžiagas bei autorinius dizaino sprendimus. Tai puikus pasirinkimas žmonėms, vertinantiems kokybę, estetiką ir mažas energijos sąnaudas – name įrengta nuosava 12 kW saulės elektrinė.
Čia harmoningai dera modernus dizainas, komfortas ir tvarūs sprendimai.
________________________________________
INTERJERAS
Namo interjerą kūrė dizainerė Simona Gelombickienė, o pats interjeras publikuotas žurnalo „MANO NAMAI“ sausio mėnesio numeryje.
Interjero pagrindas – švarios, minimalistinės erdvės, kurias papildo natūralūs ir šilti akcentai. Mikrocemento grindys suteikia modernumo, o šilto atspalvio medis, tekstūrinės užuolaidos, minkšti audiniai ir kilimai sukuria jaukią ir subalansuotą atmosferą.
Interjere subtiliai dera modernūs baldai ir mid-century stiliaus elementai, suteikiantys namams išskirtinį charakterį.
________________________________________
PRIVALUMAI
• Erdvus 12 arų sklypas – daug privatumo ir vietos poilsiui
• Nuosava 12 kW saulės elektrinė – itin mažos elektros sąnaudos
• Įspūdingos ~4 metrų aukščio lubos
• Itin šviesus namas – langai orientuoti į rytus, pietus ir vakarus
• Visi baldai ir durys gaminti pagal individualų dizaino projektą
• Naudotos aukščiausios klasės medžiagos – natūralus ąžuolo lukštas ir kt.
• 4 didelės iki lubų integruotos spintos
• Erdvi drabužinė miegamojo zonoje
• 2 vonios kambariai – viename dušas, kitame vonia
• Išskirtiniai miegamojo lovų audiniai, užsakyti iš Anglijos
• Meno kūriniai tapyti pagal individualų užsakymą
• Katilinės patalpa su Hitachi oras–vanduo šildymo sistema
• Vandens filtravimo sistema
• Rekuperacinė sistema
• Kondicionierius
• 35 kv. m terasa su lauko baldais
• Sutvarkytas sklypo gerbūvis su laistymo sistema
• Sklypas aptvertas tvora
• Automatiniai vartai ir domofonas
• Vaikų žaidimo aikštelė
• Lauko sandėliukas
• Apsaugos sistema – vaizdo kameros, signalizacija, priešgaisrinė sistema
________________________________________
PAPILDOMA INFORMACIJA
Namas parduodamas su visais baldais ir buitine technika, todėl galima iš karto įsikelti ir gyventi.
Tai išskirtinis pasiūlymas tiems, kurie ieško kokybiškai įrengtų namų, kuriuose dera modernus dizainas, komfortas ir ekonomiški energetiniai sprendimai.

  • Kiti brokerio objektai

Marius Urbanavičius

NT Ekspertas

phone icona
SKAMBINK!
+370 610 22929

PLANUOK APŽIŪRĄ






    Privatumo politika



    Objekto ID:
    193571
    Veiksmas:
    Pardavimas
    Kambarių sk.:
    4
    Aukštų sk.:
    1
    Pastatas:
    Sublokuotas
    Metai:
    2025
    Įrengimo lygis:
    Visa apdaila
    Šildymas:
    Vanduo
    Plotas, m²:
    109.0