Parduodamas namas Bitininkų g. 21, Didžiasalio k., 118.16 kv.m ploto, 1 aukštai

Kaina:
269 000€
(2 277€/m²)

Parduodamas namas Bitininkų g. 21, Didžiasalio k., 118.16 kv.m ploto, 1 aukštai

Bitininkų g. Vilniaus r. sav. Didžiasalio k.

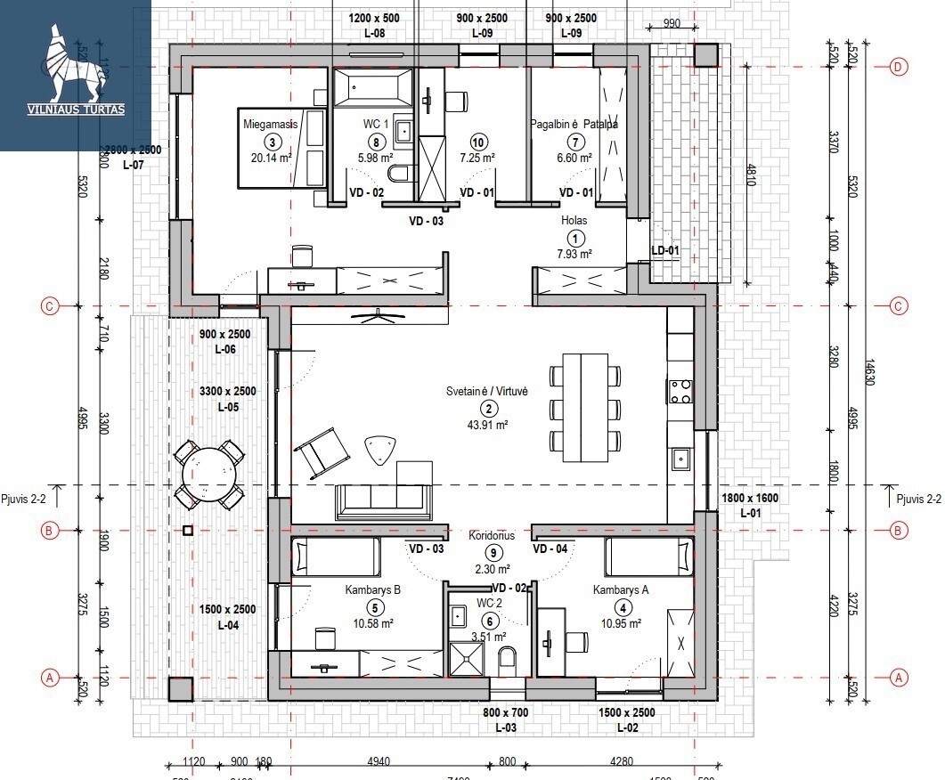
Parduodamas dar įrenginėjamas individualus vienbutis namas Didžiasalyje. Numatomi 3 miegamieji kambariai. Namas planuojamas pabaigti statyti 2026m pirmą ketvirtį. Kadangi vyksta statybos įrengimą ir kitus darbus galima derintis statybos eigoje. Kainą 269 000eur už dalinę apdailą.
BENDRA INFORMACIJA:
– Bendras plotas nuo 118.16 kv.m.
– Sklypo plotas 10a.
– Kambarių skaičius – 4;
– Aukštų skaičius – 1;
– Namo tipas – mūrinis;
– Statybos metai – 2026m..

NAMO IŠPLANAVIMAS:
– Svetainė kartu su virtuve skiria pertvara;
– Trys izoliuoti miegamieji:
– Du San. Mazgai.
– Techninė patalpa.
– Įeinama spinta arba darbo kambarys.

KOMUNIKACIJOS:
– Šildymas – elektrinis – grindinis.
KAMBARIŲ APDAILA
– Langai – plastikiniai.
– Grindys – betonuotos .

KITA INFORMACIJA
– Namas pastatytas naudojant kokybiškas medžiagas;
– Patogus susisiekimas tiek savu, tiek visuomeniniu transportu.

Papildoma informacija

  • Detalus planas
  • Elektra
  • Geras privažiavimas
  • Langai su stiklo paketais
  • Lauko terasa
  • Rūbinė
  • Vandentiekis
  • Virtuvė sujungta su kamb.
  • Vonia
  • Šarvuotos durys
  • Kiti brokerio objektai

Giedrius Pečiulis

NT Brokeris

phone icona
SKAMBINK!
+37065879963

PLANUOK APŽIŪRĄ






    Privatumo politika



    Objekto ID:
    192653
    Veiksmas:
    Pardavimas
    Kambarių sk.:
    4
    Aukštų sk.:
    1
    Pastatas:
    Namas
    Metai:
    2026
    Įrengimo lygis:
    Dalinė apdaila
    Šildymas:
    Elektrinis
    Plotas, m²:
    118.16