Parduodamos patalpos Šv. Jurgio g. 21, Buivydžių I k., 147.49 kv.m ploto

Kaina:
86 000€
(583€/m²)

Parduodamos patalpos Šv. Jurgio g. 21, Buivydžių I k., 147.49 kv.m ploto

Šv. Jurgio g. Buivydžių I k. Vilniaus r. sav.

KOMERCINIS OBJEKTAS VERSLUI BUIVYDŽIUOSE – SU ŽEME, PASTATAIS IR AIŠKIA PERSPEKTYVA

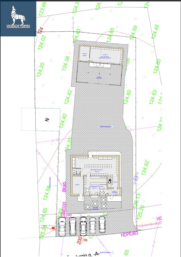
Apie objektą
Parduodamas tvarkingas, kapitaliai suremontuotas komercinis objektas gyvenvietės centre.
Šiuo metu pastatas turi administracinę paskirtį, tačiau jau tvarkomi dokumentai paskirties keitimui į maisto prekių parduotuvę.
Vieta gyva, aplink – nuolatinis vietinių gyventojų srautas. Netoliese mokykla, bažnyčia, viešojo transporto stotelė. Tai ta vieta, kur verslas yra reikalingas.

PASTATŲ INFORMACIJA
Bendras pastatų plotas: 147,49 kv. m
Pagrindinis pastatas (parduotuvė / kavinė): 103,50 kv. m
Ūkinis pastatas: 43,99 kv. m
Pastatų baigtumas: 100 %
Išvedžiotos pagrindinės komunikacijos
Grindys ir sienos išklijuotos plytelėmis
Patalpos paruoštos įsirengti pagal savo veiklą
Elektros įvadas – 28 kW
Nuotekos ir vandentiekis atvesti iki sklypo ribos

Ūkinis pastatas paliekamas neįrengtas – galima jį įsirengti pagal savo poreikius: sandėliui, pagalbinėms patalpoms ar kitai veiklai.

ŽEMĖS SKLYPAS
9,39 a komercinės paskirties sklypas
Sklypas suformuotas atliekant kadastrinius matavimus
Erdvė ne tik dabartinei veiklai, bet ir plėtrai ateityje

KAM ŠIS OBJEKTAS TINKA?
Maisto prekių parduotuvei
Kavinukei ar užkandinei
Paslaugų verslui

Šis objektas vertas tavo dėmesio.

NT brokeris Miroslavas
📞 +370 655 95959

  • Kiti brokerio objektai

Miroslav Sadovskij

NT Brokeris

phone icona
SKAMBINK!
+370 655 95959

PLANUOK APŽIŪRĄ






    Privatumo politika



    Objekto ID:
    193281
    Veiksmas:
    Pardavimas
    Kambarių sk.:
    1
    Aukštas:
    1
    Aukštų sk.:
    1
    Pastatas:
    Mūrinis
    Metai:
    1956
    Įrengimo lygis:
    Dalinė apdaila
    Šildymas:
    Kita
    Plotas, m²:
    147.49