Parduodamas butas Daugėliškio g. 33-25, Šnipiškėse, Vilniuje, 91.82 kv.m ploto, 4 kambariai
Parduodamas butas Daugėliškio g. 33-25, Šnipiškėse, Vilniuje, 91.82 kv.m ploto, 4 kambariai
Vilniaus m. sav. Vilniaus m. Šnipiškės Daugėliškio g.
Parduodamas erdvus 4 kambarių butas su židiniu, didele terasa ir net dviem erdviais balkonais Vilniuje, projekte „K17”, esančiame šalia Vilniaus centro, Daugėliškio gatvėje, viename sparčiausiai besivystančių Vilniaus mikrorajonų, Šnipiškėse.
Butas dar negyventas. Jaukiai įrengtas su visais reikiamais baldais ir buitine technika. Galite apsigyventi iškart! Namas priduotas 100 proc. baigtumu.
Butas strategiškai itin patogioje vietoje, naujakuriams nekils rūpesčių dėl susisiekimo su miesto centru. Čia puikiai išvystyta infrastruktūra, patogus susisiekimas tiek nuosavu automobiliu, tiek viešuoju transportu. Be vargo daugelį objektų ir vaizdingų maršrutų pasieksite ir pėsčiomis. Namo aplinkos gerbūvis pilnai sutvarkytas, įrengtas kiemas su žaliosiomis zonomis bei vaikų žaidimo aikštelėmis.
Energinis efektyvumas A klasės. Vidinis kiemas be parkavimo aikštelių, todėl po langais nebus jokių automobilių garsų. Saugi kaimynystė.
_________________________________________________________________________
DETALI PARDUODAMO BUTO INFORMACIJA:
– Namo statybos metai: 2023 m.
– Buto paskirtis: gyvenamoji.
– Įrengimas: pilna apdaila.
– Baigtumas: 100%.
– Adresas: Daugėliškio g. 33-25, Vilnius.
– Aukštas: 7 iš 7.
– Kambarių skaičius: 4.
– Bendras plotas: 91,82 m².
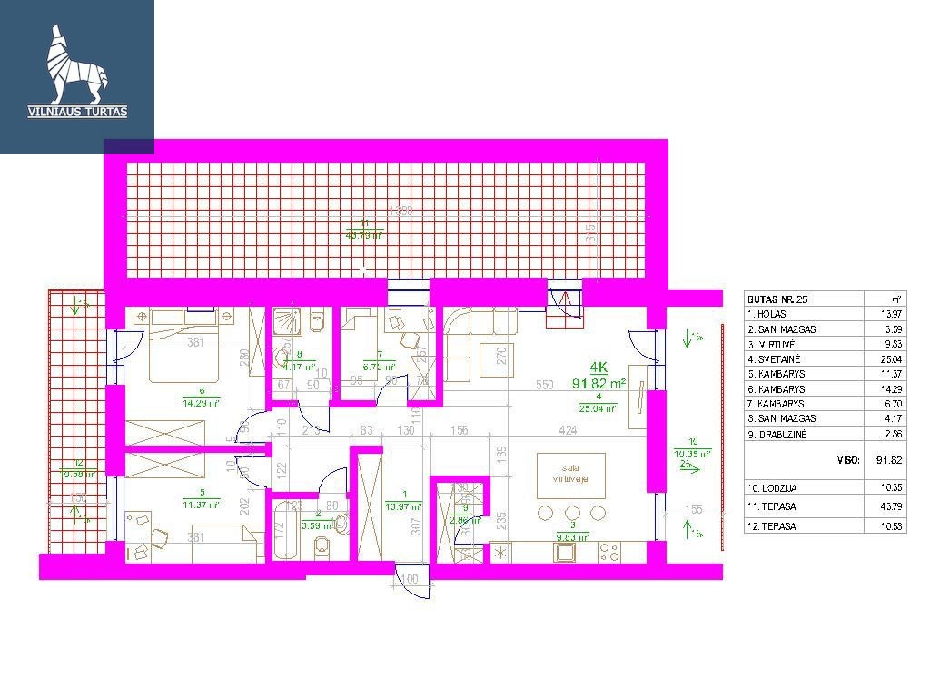
I AUKŠTAS:
– Holas: 13,97 m².
– San. mazgas: 3,59 m².
– San. mazgas: 4,17 m².
– Virtuvė: 9,83 m².
– Svetainė: 25,04 m².
– Kambarys: 11,37 m².
– Kambarys: 14,29 m².
– Kambarys: 6,70 m².
– Drabužinė: 2,86 m².
– Terasa 43,79 m². (terasa neįtraukta į bendrą buto plotą!)
– Atviras balkonas 10,58 m². (neįtrauktas į bendrą buto plotą!)
– Uždaras balkonas 10,35 m². (neįtrauktas į bendrą buto plotą!)
_________________________________________________________________________
Esant poreikiui papildomai galite įsigyti požemines automobilių stovėjimo vietas po namu esančioje uždaroje parkavimo aikštelėje.
Taip pat yra galimybė įsigyti požeminėje automobilių stovėjimo aikštelėje esančius sandėliukus.
_______________________________________________________________
Laukiu Jūsų šio buto apžiūrose gyvai!
NT brokerė
Daiva Gudinovič
+370 600 50554
daiva.gudinovic@vilniausturtas.lt
www.vilniaus-turtas.lt/brokeris/daiva-gudinovic
Papildoma informacija
- Balkonas
- Buitinė technika
- Detalus planas
- Internetas
- Kabelinė televizija
- Kodinė laiptinės spyna
- Kondicionierius
- Langai su stiklo paketais
- Liftas
- Parketas
- Rūbinė
- Skalbimo mašina
- Su baldais
- Telefono linija
- Televizorius
- Terasa
- Tualetas ir vonia atskirai
- Virtuvė sujungta su kamb.
- Vonia
PLANUOK APŽIŪRĄ
- Objekto ID:
- 191465
- Veiksmas:
- Pardavimas
- Kambarių sk.:
- 4
- Aukštas:
- 7
- Aukštų sk.:
- 7
- Pastatas:
- Mūrinis
- Metai:
- 2023
- Įrengimo lygis:
- Visa apdaila
- Šildymas:
- Miestas
- Plotas, m²:
- 91.82










