PARDUOTA!Parduodamas 2 k. butas Rodūnios kel., Vilnius
Parduodamas 2 k. butas Rodūnios kel., Vilnius
Rodūnios kel. Vilniaus m. sav. Vilniaus m. Naujininkai
Parduodamas tvarkingas 2-jų kambarių butas Rodūnios kel., Vilniuje. Puikus variantas tiek investicijai, tiek gyvenimui. Šalia namų autobusų stotelė, tad lengvai susisieksite su miesto centru. Skristi atostogų į šiltuosius kraštus taip pat bus ne problema, oro uostas šalia.
BENDRA INFORMACIJA:
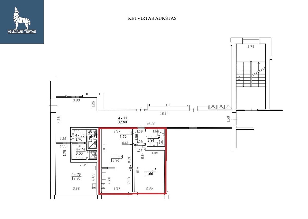
– Bendras plotas: 34,05 kv. m² (+ bendro naudojimo patalpų 11.66 kv.m.)
– Aukštas: 4 iš 5
– Kambarių skaičius: 2
– Namo tipas: blokinis, mūras.
Koridoriuje, kuris yra rakinamas, yra 5 butai, tad yra saugu, svetimi žmonės neužklys 🙂
IŠPLANAVIMAS:
– Virtuvė šiek tiek atskirta nuo svetainės – 17,76 kv.m.
– Kambarys – 11,66 kv.m.;
– Wc ir vonia bute – 2.84 kv.m.
– Koridorius – 1,79 kv.m.
ĮRENGIMAS:
– Langai – plastikiniai;
– Grindys – laminatas
– Sienos – tapetai;
– Su baldais ir buitine technika
VIETA:
– Geras susisiekimas su kitais miesto rajonais,
– Netoli viešojo transporto stotelės;
– Netoli prekybos centr „NORDIKA”, RIMI, IKEA, Decathlon.
BUTO KAINA 69000,- Eur.
__________________________
– Perkantiems su banko paskola padėsime įvertinti šį butą, rekomenduosime profesionalius NT vertintojus. BigBank finansuoja 85 proc.
– Jei kilo klausimų ar norite apžiūrėti butą, skambinkite tiek darbo dienomis, tiek savaitgaliais, susitarsime dėl apžiūros laiko.
Sertifikuota NT brokerė Renata Lapinskienė tel. +370 605 63865 renata(eta)vilniausturtas.lt
– Jei norite parduoti butą, namą, sodą ar sklypą – skambinkite , įvertinsiu NEMOKAMAI, padėsiu saugiai parduoti jūsų nekilnojamąjį turtą!
Facebooke mane rasite: www.ntbrokeriopaslaugos.lt
Kiti parduodami objektai: https://www.vilniaus-turtas.lt/brokeris/renata-lapinskiene/
Papildoma informacija
- Buitinė technika
- Langai su stiklo paketais
- Skalbimo mašina
- Su baldais
- Vonia
PLANUOK APŽIŪRĄ
- Objekto ID:
- 190487
- Veiksmas:
- Pardavimas
- Kambarių sk.:
- 2
- Aukštas:
- 4
- Aukštų sk.:
- 5
- Pastatas:
- Blokinis
- Metai:
- 1971
- Įrengimo lygis:
- Tvarkingas
- Šildymas:
- Centrinis
- Plotas, m²:
- 34.05










