PARDUOTA!Parduodamos 3 studijos Kapsų g. 32, Naujininkuose, Vilniuje, 50.55 kv.m ploto, 3 kambariai
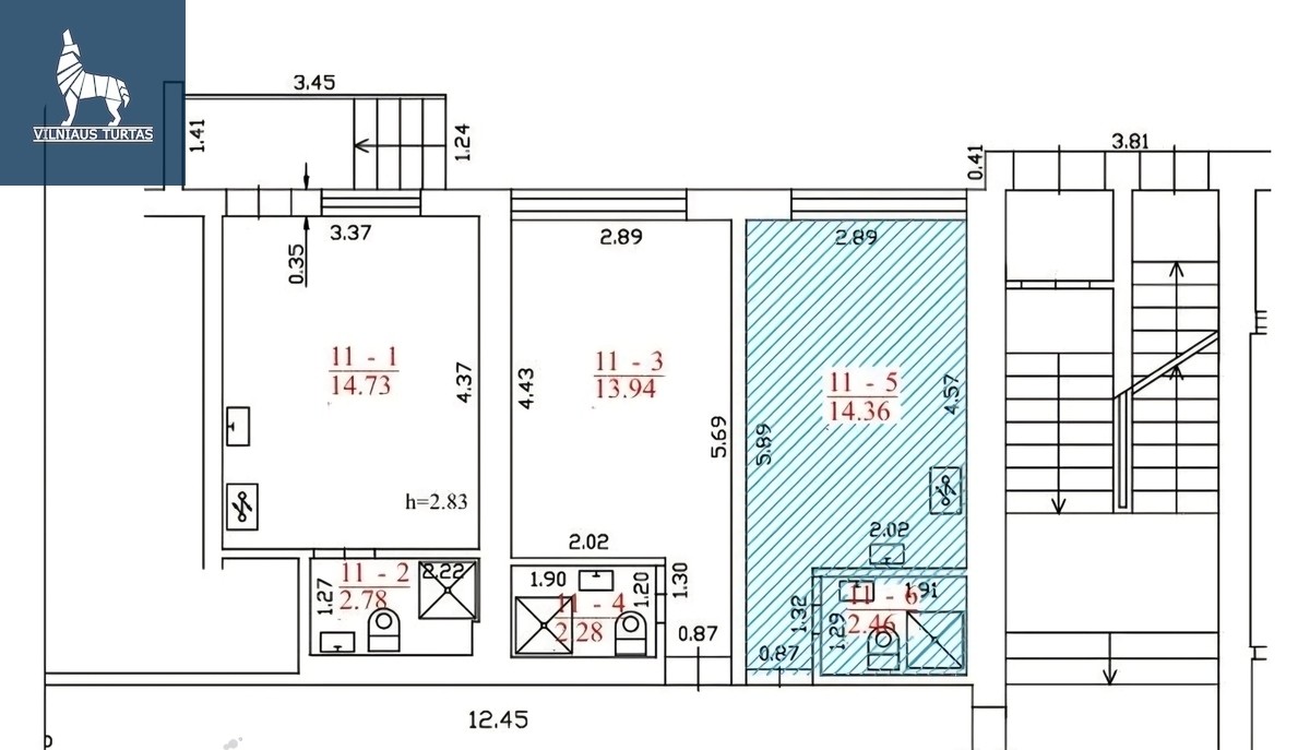
Parduodamos 3 studijos Kapsų g. 32, Naujininkuose, Vilniuje, 50.55 kv.m ploto, 3 kambariai
Kapsų g. Vilniaus m. sav. Vilniaus m. Naujininkai
Parduodamos naujai įrengtos 3 studijos Naujininkuose, Kapsų g. Vilniuje – su visais patogumais! Patrauklus pasiūlymas investuotojams.
Kaina: 179 000 € už visas 3 studijas
Bendras plotas: apie 50.55 kv. m (Vienos studijos plotas apie 16kv.m)
Nuomos kaina už vieną studiją 400-440€ (šiuo metu yra nuomuojamos)
Studijos įrengtos prieš metus– viskas nauja, stilinga ir apgalvota iki smulkmenų.
—
🏡 Pagrindinė informacija:
• Plotas – 50.55 kv. m
• Paskirtis- gyvenamoji
• Parduodama su visais baldais ir buitine technika
•Nauja elektros instaliacija, nauja kanalizacija
—
Virtuvė:
• Pilnai įrengtas virtuvės komplektas
• Įmontuota buitinė technika (kaitlentė, gartraukis, ir kt.)
—
Gyvenamoji zona:
• Patogi poilsio erdvė su svetaine ir miegamuoju
• Šiuolaikiškas interjeras, apgalvotas išplanavimas
—
Vonios kambarys:
• Dušas, tualetas
• Skalbyklė – džiovyklė
📍 Vieta:
• Naujininkai, Kapsų 32, – patogus ir strategiškai patrauklus rajonas
• Patogus susisiekimas su centru
• Netoliese prekybos centrai, viešasis transportas
Skambinkite, ar rašykite patogiu laiku :
+37067794725
margarita.sadauskaite@vilniausturtas.lt
Papildoma informacija
- Buitinė technika
- Kodinė laiptinės spyna
- Skalbimo mašina
- Su baldais
- Virtuvė sujungta su kamb.
PLANUOK APŽIŪRĄ
- Objekto ID:
- 192510
- Veiksmas:
- Pardavimas
- Kambarių sk.:
- 3
- Aukštas:
- 1
- Aukštų sk.:
- 5
- Pastatas:
- Mūrinis
- Metai:
- 1978
- Įrengimo lygis:
- Visa apdaila
- Šildymas:
- Centrinis
- Plotas, m²:
- 50.55







