PARDUOTA!Parduodamas butas/loftas Vytenio g. Vilniuje
Parduodamas butas/loftas Vytenio g. Vilniuje
Vytenio g. Vilniaus m. sav. Vilniaus m. Naujamiestis
Ieškote išskirtinio būsto miesto centre? Parduodamas gyvenamosios paskirties loftas prestižiniame Naujamiesčio rajone – tai puikus pasirinkimas vertinantiems modernų gyvenimo būdą, erdvę ir patogumą. Objektas idealiai tinka tiek nuolatiniam gyvenimui, tiek investicijai nuomai ar kūrybinei veiklai
BENDRA INFORMACIJA
– Adresas: Vilnius, Vytenio g.22
– Statybos metai – 1980 m., kapitalinis remontas – 2015 m.
– Bendras buto plotas: 88,04 kv. m² (yra ir didesnių)
– Baigtumas 100 proc.
– Pilna apdaila
– Aukštas: 3 iš 9
– Kambarių skaičius: 2
– Ekonomiškas dujinis grindinis šildymas.
– Pastato būklė: Atnaujintas fasadas ir vidaus laiptinės, naujas erdvus liftas.
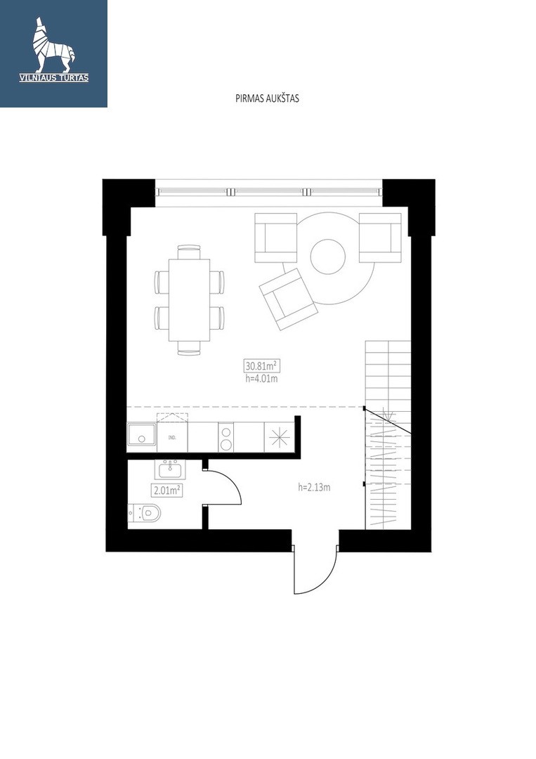
IŠPLANAVIMAS:
1 aukšte:
– Virtuvė sujungta su svetaine – 30,81 kv.m. (lubų aukštis 4,01 m.);
– WC – 2,01 kv.m. (lubų aukštis 2,13 kv.m.)
2 aukšte (antresolė):
– Poilsio/Darbo zona – 10,13 kv.m. (lubų aukštis 1,88 m.);
3 aukšte:
– Kambarys 31,24 kv.m. (lubų aukštis 2,52 m.);
– Wc ir dušas kartu 9,18 kv.m. (lubų aukštis 2,52 m.);
– Pagalbinė patalpa 4,67 kv.m. ;
ĮRENGIMAS:
– Langai – plastikiniai;
– Grindys – vinilas, plytelės;
– Sienos – dažytos;
– Laiptai – dažyti, metaliniai.
PRIVALUMAI:
– Gyvenamosios paskirties loftas;
– Unikalus išplanavimas per 3 lygius
– Lubų aukštis – iki 4 m – daugiau šviesos ir erdvės
– Strategiškai patogi vieta
– Atnaujintas pastatas tiek išorėje, tiek viduje, su nauju liftu
– Idealiai tinka tiek gyvenimui, tiek investicijai
VIETA IR INFRASTRUKTŪRA:
– Loftas įsikūręs vienoje patraukliausių miesto vietų – Naujamiesčio rajone.
– Puikiai išvystyta infrastruktūra: šalia parduotuvės, kavinės, biurai, darželiai, mokyklos, viešojo transporto stotelės.
– Patogus susisiekimas tiek automobiliu, tiek viešuoju transportu – pasieksite bet kurį miesto tašką greitai ir patogiai.
Jei kilo klausimų ar norite apžiūrėti butą, skambinkite tiek darbo dienomis, tiek savaitgaliais, susitarsime dėl apžiūros laiko:
Sertifikuota NT brokerė Renata Lapinskienė tel. +370 605 63865 renata(eta)vilniausturtas.lt
————————————————————————————————————————-
Jei norite išnuomoti ar parduoti savo būstą – mielai padėsiu ir jums! Tel.+37060563865 NT brokerė Renata Lapinskienė www.ntbrokeriopaslaugos.lt
Papildoma informacija
- Aukštos lubos
- Butas per kelis aukštus
- Langai su stiklo paketais
- Liftas
- Virtuvė sujungta su kamb.
PLANUOK APŽIŪRĄ
- Objekto ID:
- 191178
- Veiksmas:
- Pardavimas
- Kambarių sk.:
- 2
- Aukštas:
- 3
- Aukštų sk.:
- 9
- Pastatas:
- Mūrinis
- Metai:
- 1980
- Įrengimo lygis:
- Visa apdaila
- Šildymas:
- Dujinis
- Plotas, m²:
- 88.04










