Parduodamos patalpos J. Jasinskio g. 4, Naujamiestyje, Vilniuje, 74 kv.m ploto
Parduodamos patalpos J. Jasinskio g. 4, Naujamiestyje, Vilniuje, 74 kv.m ploto
J. Jasinskio g. Vilniaus m. sav. Vilniaus m. Naujamiestis
Parduodamos patalpos patrauklioje vietoje – Jasinskio / Pakalnės g., Vilniuje
TAI GALĖTŲ BŪTI BUTAS NUOMAI arba BŪSTAS SAU CENTRE,
o taip pat galbūt JŪSŲ BIURAS ar PARDUOTUVĖ strategiškoje iesto vietoje.
Adresas: Jasinskio g. 4, Vilnius
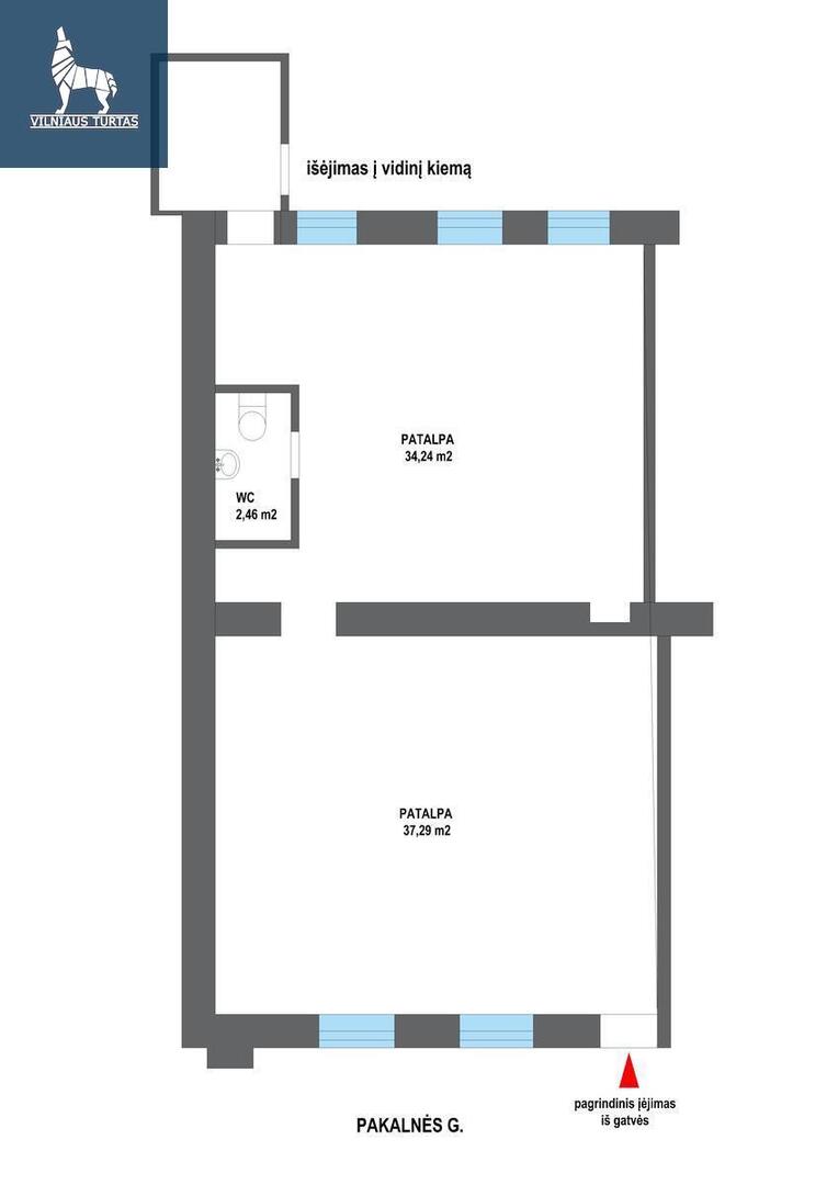
Plotas: 74 m²
Paskirtis: Parduotuvė (galima keisti į gyvenamąją).
Pirmame aukšte esančios patalpos sparčiai besivystančiame Vilniaus Naujamiestyje, Jasinskio / Pakalnės gatvėje. Priešais pastatytas modernus verslo centras dar labiau kelia šios lokacijos vertę. Netoliese Hilton Garden Inn Vilnius viešbutis, Gedimino pr.
Patalpų privalumai:
– Pirmas aukštas (iš 3)
– Atskiras įėjimas iš Pakalnės g.
– Išėjimas į vidinį kiemą
– Galimybė parkuotis uždarame kieme
Kodėl verta rinktis?
– Itin patogi lokacija – šalia miesto centro, netoli verslo bei valstybinių institucijų
– Didelis investicinis potencialas – tai auganti ir sparčiai besikeičianti teritorija
– Patalpos puikiai tinka tiek įvairiai veiklai, nuomai ar gyvenimui.
Dėl apžiūros ir detalesnės informacijos kreiptis:
NT brokerė Aušra Kačinskaitė
+37066389289
Papildoma informacija
- Atskiras įėjimas
- Elektra
- Geras privažiavimas
- Vandentiekis
- Įėjimas iš gatvės
PLANUOK APŽIŪRĄ
- Objekto ID:
- 192182
- Veiksmas:
- Pardavimas
- Kambarių sk.:
- 2
- Aukštas:
- 1
- Aukštų sk.:
- 3
- Pastatas:
- Mūrinis
- Metai:
- 1940
- Įrengimo lygis:
- Dalinė apdaila
- Šildymas:
- Centrinis
- Plotas, m²:
- 74.0
