REZERVUOTA!Parduodamas butas Didlaukio g. 74-65, Baltupiuose, Vilniuje, 71.53 kv.m ploto, 4 kambariai
Parduodamas butas Didlaukio g. 74-65, Baltupiuose, Vilniuje, 71.53 kv.m ploto, 4 kambariai
Didlaukio g. Vilniaus m. sav. Vilniaus m. Baltupiai
– PARDUODAMAS KĄ TIK NAUJAI ĮRENGTAS, DAR NIEKENO NEGYVENTAS, ERDVUS 4-IŲ KAMBARIŲ BUTAS BALTUPIUOSE, DIDLAUKIO GATVĖJE –
– KVIEČIAME JUS Į ATVIRŲ DURŲ DIENĄ, KURI VYKS BALANDŽIO 23 D., (KETVIRTADIENĮ), NUO 8:00 IKI 18:30! –
Butas po kokybiško, pilno kapitalinio remonto bei yra parduodamas su visais reikalingiausiais baldais bei buitine technika – puikus variantas norintiems apsigyventi iš karto!
Vieta strategiškai patogi tiems, kas nori gyventi žalumos apsuptyje, nenutolstant nuo miesto teikiamų patogumų – šalimais ugdymo įstaigos, prekybos bei pramogų/laisvalaikio centrai, viešojo transporto stotelės, puikus susisiekimas su Vilniaus miesto centru – šalia Geležinio Vilko gatvė, užtikrinanti greitą pagrindinių Vilniaus miesto lokacijų pasiekiamumą tiek automobiliu, tiek ir viešuoju transportu.
BENDRA INFORMACIJA APIE BUTĄ:
■ Adresas: Didlaukio g. 74;
■ Bendras buto plotas: 71,53 kv. m.;
■ Aukštas: 8 iš 9, (yra liftas);
■ Kambarių sk.: 4;
■ Namo statybos metai: 1978 m.;
■ Paskirtis: gyvenamoji, (butų);
■ Šildymas: centrinis.
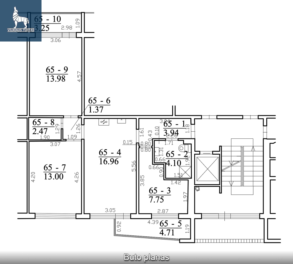
IŠPLANAVIMAS IR ĮRENGIMAS:
■ Svetainė/virtuvė – 16,96 kv. m.;
■ Miegamasis – 13,98 kv. m.;
■ Miegamasis/darbo kambarys – 13,00 kv. m.;
■ Miegamasis/darbo kambarys – 7,75 kv. m.;
■ Vonios kambarys – 4,10 kv. m.;
■ Koridorius nr. 1 – 3,94 kv. m.;
■ Koridorius nr. 2 – 1,37 kv. m.;
■ Tamsusis kambarys – 2,47 kv. m.;
■ Balkonas nr. 1 – 4,71 kv. m.;
■ Balkonas nr. 2 – 3,25 kv. m.
■ Erdvi svetainė apjungta su valgomojo ir virtuvės zonomis, virtuvėje sumontuota kokybiška buitinė technika;
■ Miegamasis su erdvia spinta bei dvigule lova;
■ 2 erdvūs kambariai – galimybė apsistatyti baldais ir prisitaikyti erdvę pagal savo poreikius;
■ Šviesus vonios kambarys su naujais santechniniais mazgais;
■ Koridorius su talpia – sienine spinta;
■ Renovuoti, įstiklinti balkonai su varstomais langais.
■ Svetainės, koridoriaus ir miegamojo zonoje dažytos sienos, vonioje – plytelės;
■ Bute sumontuotas kokybiškas „LED” tipo apšvietimas;
■ Grindys svetainėje/virtuvėje, koridoriuje bei miegamuosiuose – vinilas, vonioje – plytelės;
■ Kambariuose sumontuoti plastikiniai, varstomi langai;
■ Sumontuotos kokybiškos – šarvo tipo durys;
■ Butas apstatytas funkcionaliais baldais.
PRIVALUMAI:
■ Butas šviesus ir šiltas, ne kampinis, langai orientuoti vakarų ir rytų kryptimis;
■ Tvarkinga laiptinė, durys rakinamos telefonspyne, name įrengtas reguliariai aptarnaujamas liftas;
■ Ramūs bei bendruomeniški kaimynai;
■ Šalia namo ir aplink jį įrengtos kelios bendrojo naudojimo, (praplatintos), automobilių parkavimo aikštelės;
■ Butui priklauso sandėliukas rūsyje.
LOKACIJOS PRIVALUMAI:
Artimiausios viešojo transporto stotelės:
■ Didlaukio st. ~ 270 m.;
■ Baltupiai st. ~ 600 m.;
■ Naujakiemio st. ~ 900 m.
Artimiausi prekybos centrai:
■ „Iki” ~ 350 m.;
■ „Maxima” ~ 700 m.;
■ „Norfa” ~ 1,3 km.;
■ „Rimi” ~ 2 km.;
Artimiausios ugdymo įstaigos:
■ Vilniaus lopšelis – darželis „Šermukšnėlė” ~ 100 m.;
■ Vilniaus darželis – mokykla „Gintarėlis” ~ 550 m.;
■ Vilniaus darželis – mokykla „Sakalėlis” ~ 2 km.;
■ Vilniaus darželis – mokykla „Jovarėlis” ~ 2,2 km.
■ Vilniaus Baltupių progimnazija ~ 400 m.;
■ Vilniaus „Ateities” vidurinė mokykla ~ 2 km.;
■ Vilniaus Simono Stanevičiaus vidurinė mokykla ~ 2,3 km.;
■ Mykolo Romerio universitetas ~ 1,5 km.
Susisiekite Jums patogiu metu, suteiksime visą rūpimą informaciją!
–
Visus naujausius nekilnojamojo turto skelbimus rasite mūsų internetiniame puslapyje www.vilniaus-turtas.lt. Kviečiame apsilankyti!
Papildoma informacija
- Aukštos lubos
- Balkonas
- Buitinė technika
- Detalus planas
- Internetas
- Kabelinė televizija
- Kodinė laiptinės spyna
- Langai su stiklo paketais
- Liftas
- Parketas
- Rūbinė
- Rūsys
- Sandėliukas
- Su baldais
- Telefono linija
- Vieta automobiliui
- Virtuvė sujungta su kamb.
PLANUOK APŽIŪRĄ
- Objekto ID:
- 193734
- Veiksmas:
- Pardavimas
- Kambarių sk.:
- 4
- Aukštas:
- 8
- Aukštų sk.:
- 9
- Pastatas:
- Blokinis
- Metai:
- 1978
- Įrengimo lygis:
- Suremontuotas
- Šildymas:
- Centrinis
- Plotas, m²:
- 71.53







