Parduodamas sklypas Viršupio Sodų 8-oji g. 14, Antakalnyje, Vilniuje, 5.84 a ploto
Parduodamas sklypas Viršupio Sodų 8-oji g. 14, Antakalnyje, Vilniuje, 5.84 a ploto
Viršupio Sodų 8-oji g. Vilniaus m. sav. Vilniaus m. Antakalnis
Išskirtinis sklypas Antakalnyje – vietoje, kur miesto patogumai susilieja su gamtos ramybe.
Tai vieta, kur gyvenimas tampa lėtesnis ir kokybiškesnis – aplink supanti žaluma, miškai ir pušynai leidžia atsikvėpti nuo miesto šurmulio, tačiau viskas, ko reikia kasdieniam gyvenimui, išlieka lengvai pasiekiama. Vos keliolika minučių – ir jūs jau Vilniaus centre, o grįžus namo pasitinka tyla, privatumas ir gamtos artumas.
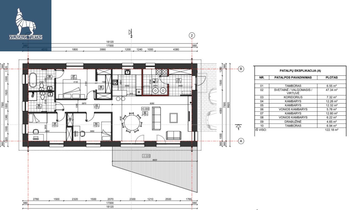
Sklypas jau turi parengtą modernaus, funkcionalaus namo projektą! Išvenkite ilgo planavimo etapo ir greičiau judėkite link savo svajonių namų įgyvendinimo. Statybos leidimas bus gegužės mėnesį.
PRIVALUMAI:
✓ Miesto vanduo, nuotekos, elektra ir dujos – visos komunikacijos šalia sklypo;
✓ Planuojamas statybos leidimas – 2026 m. gegužės pradžioje;
✓ Parengtas modernaus namo projektas (122.18 kv. m);
✓ Numatytas namo funkcionalus išplanavimas – 3 miegamieji kambariai;
✓ Žalia ir rami aplinka, apsupta miškų ir pušynų;
✓ Netoliese Piliakalnio ir Rokantiškių miško parkai;
✓ Patogus susisiekimas su miesto centru (~14 min. iki Katedros);
✓ Šalia dviračių takai, pasivaikščiojimo ir aktyvaus laisvalaikio erdvės;
✓ Puiki vieta tiek gyvenimui, tiek investicijai.
Koordinatės: 54.713812, 25.358862
https://maps.app.goo.gl/1PZFgnNpzieZLZUo9
Jūsų NT Brokeris Lukas Vilimas
tavo@brokerislukas.lt
PLANUOK APŽIŪRĄ
- Objekto ID:
- 193951
- Veiksmas:
- Pardavimas
- Plotas, a²:
- 5.84
