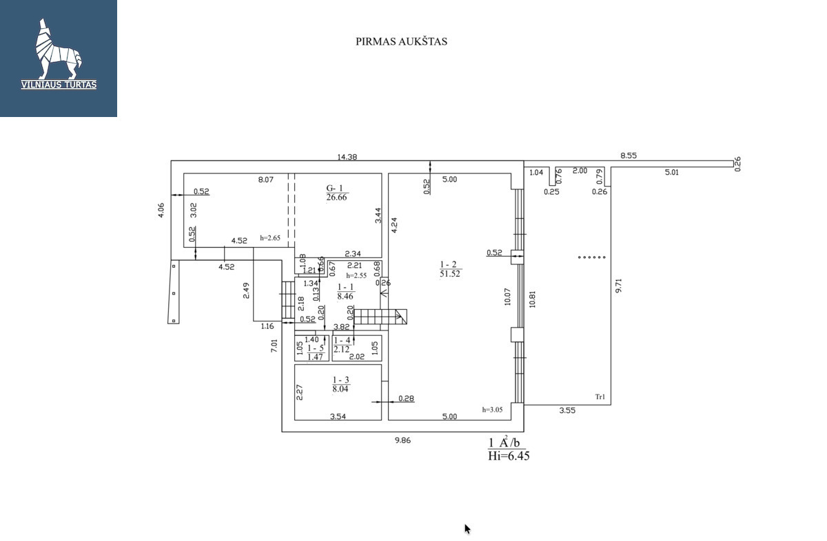
Parduodamas namas Kiškeliškių g. , Antakalnyje, Vilniuje, 180.21 kv.m ploto, 2 aukštai

Kaina:
404 000€
(2 242€/m²)

Parduodamas namas Kiškeliškių g. , Antakalnyje, Vilniuje, 180.21 kv.m ploto, 2 aukštai

Kiškeliškių g. Vilniaus m. sav. Vilniaus m. Antakalnis

LAISVI 3/6 NAMAI

Yra vietų, kuriose miesto ritmas nurimsta. Kur rytą pradeda pušų kvapas, šviesa pro vitrinius langus ir ramus miško garsas.
Antakalnyje, gamtos apsuptyje, parduodamas modernios architektūros A++ klasės namas privačioje gyvenvietėje.

Namas projektuotas šiuolaikiškai ir funkcionaliai. Dideli vitrininiai langai įleidžia daug natūralios šviesos. Vidaus erdvės lengvai pritaikomos skirtingiems gyvenimo scenarijams. Terasa atsiveria į erdvų sklypą, o architektūriniai sprendimai kuria ramų, estetišką namų charakterį.
Esant poreikiui, galime pasirūpinti pilnu įrengimu – nuo apdailos iki baldų ir buitinės technikos.

PAGRINDINĖ INFORMACIJA
• Plotas – 180,21 kv. m
• Sklypas – 10,04 a
• Statybos metai – 2025
• Baigtumas – 80 %
• Namo tipas – mūrinis

TECHNINIAI SPRENDIMAI
• Energinė klasė A++
• Mūrinės konstrukcijos (silikatiniai blokeliai)
• Fasadas – klinkeris ir akmens masės plytelės
• Sienos apšiltintos 35 cm polistirolu
• Pamatai – gelžbetoniniai, apšiltinti 30 cm polistirolu
• Stogas apšiltintas 50 cm polistirolu
• Aliuminio langai (3 stiklų paketai)
• Vidinės pertvaros – mūrinės
• Geoterminis katilas jau sumontuotas
• Grindinis šildymas visame name
• Elektros įvadas 9 kW (galimybė didinti)
• Paruošta vieta elektromobilio krovimo stotelei

KOMUNIKACIJOS
• Šildymas – geoterminis
• Vandentiekis – miesto
• Nuotekos – vietinės (AUGUST)
• Elektros įvadas
• Lauko vandens kranas

NAMO PRIVALUMAI
• Uždara ir privati gyvenvietė Antakalnyje
• Vitrininiai langai ir daug natūralios šviesos
• Terasa ir erdvus sklypas
• Garažas / sandėliavimo patalpa su automatiniais vartais
• A++ energetinė klasė – efektyvumas ir komfortas
• Galimybė apžiūrėti jau įrengtus namus kvartale
• Galime pilnai įrengti namą pagal Jūsų poreikius

INFRASTRUKTŪRA
Viešasis transportas:
~250 m SB „Karačiūnai“ st.
~1,2 km Miško st.
~1,9 km Karačiūnų st.
Gamta:
~3,1 km Tapelių ežeras
~3,2 km miško taku iki Balžio ežero
~3,5 km Juodžio ežeras
Parduotuvės:
~3,8 km „Norfa XL“
~6,9 km „Maxima“
~7,6 km „Lidl“
Ugdymo įstaigos:
~3,6 km Temem pradinė mokykla
~4,7 km The British International School of Vilnius
~6,3 km „Augu kūrybingas“ darželis

+37061269424 | Žygimantas Jokšas

Papildoma informacija

  • Detalus planas
  • Elektra
  • Geras privažiavimas
  • Langai su stiklo paketais
  • Lauko terasa
  • Signalizacija
  • Tualetas ir vonia atskirai
  • Vandentiekis
  • Vietinė kanalizacija
  • Virtuvė sujungta su kamb.
  • Vonia
  • Šalia vandens tvenkinio
  • Šarvuotos durys
  • Židinys
  • Kiti brokerio objektai

Žygimantas Jokšas

NT Brokeris

phone icona
SKAMBINK!
+370 612 69424

PLANUOK APŽIŪRĄ






    Privatumo politika



    Objekto ID:
    191795
    Veiksmas:
    Pardavimas
    Kambarių sk.:
    5
    Aukštų sk.:
    2
    Pastatas:
    Namas
    Metai:
    2025
    Įrengimo lygis:
    Dalinė apdaila
    Šildymas:
    Plotas, m²:
    180.21