Parduodamas butas Pylimo g. 59, , Palangoje, 40.13 kv.m ploto, 2 kambariai

Kaina:
105 000€
(2 617€/m²)

Parduodamas butas Pylimo g. 59, , Palangoje, 40.13 kv.m ploto, 2 kambariai

Pylimo g. Šventoji Palangos m. sav. Palangos m.

1,5 kambario butas Šventojoje prie jūros

Parduodamas jaukus ir funkcionaliai suplanuotas 1,5 kambario butas išskirtinėje vietoje – prie pat Šventosios upės, vos kelios minutės iki jūros.
Butas yra 23 butų name, ramioje ir gamtos apsuptoje vietoje – namas paskutinis, aplink pušys ir smilgos. Vos ~30 m iki upės su laisvu priėjimu – puiki vieta tiek ramiam poilsiui, tiek aktyviam laisvalaikiui (pvz., irklentėmis). Iki jūros ~850 m (prie Beždžionių tilto), iki centro ~470 m, tačiau vieta išlieka itin rami, toliau nuo šurmulio.

PAGRINDINIAI PRIVALUMAI:
• Kelios minutės iki jūros – tiek per kopas, tiek upe
• Tiesioginis priėjimas prie Šventosios upės
• Itin rami, saugi ir bendruomeniška aplinka
• Šalia Beždžionių tiltas
• Daug parkavimo vietų
• Draugiški kaimynai, dauguma – poilsiautojai

BUTAS:
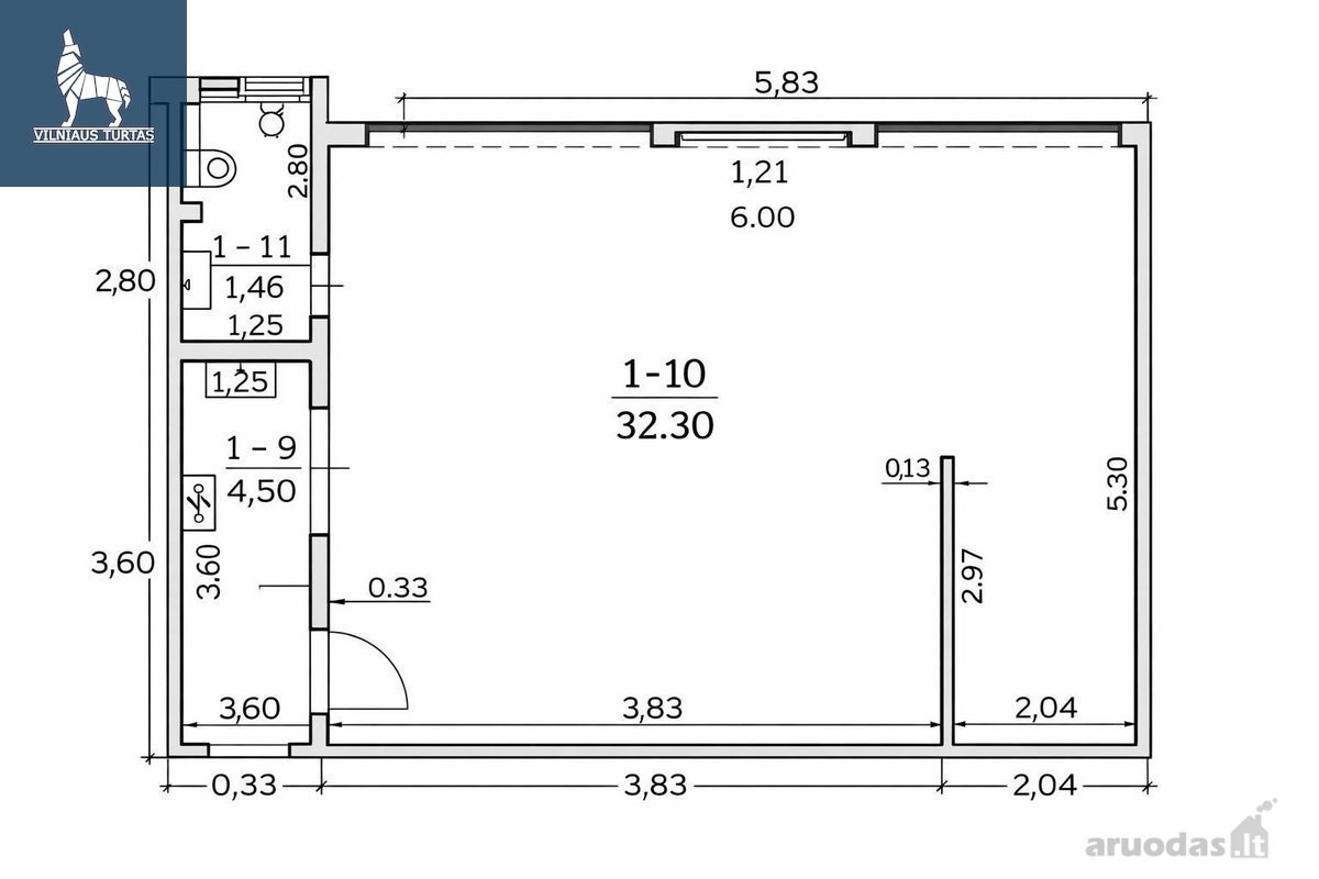
• 1,5 kambario patogus išplanavimas (40,13 kv. m)
• Svetainė sujungta su virtuve
• Atskira miegamoji zona (yra galimybė suformuoti atskirą kambarį su langu ir balkonu)
• Šiuo metu įrengtas mini miegamasis su tvirta dviaukšte lova
• Erdvi svetainė su sofomis-lovomis
• Visi langai orientuoti į pietvakarius – saulė visą dieną
• Didelis balkonas su išėjimu į lauką (puikiai tinka poilsio zonai, kepsninei ar dviračiams)
• 1 aukštas – patogu šeimoms

ĮRENGIMAS IR KOMFORTAS:
• Parduodamas su baldais – galima iš karto gyventi ar nuomoti
• „Carrier“ inverterinis kondicionierius (šildymas/vėsinimas, valdomas nuotoliniu būdu)
• Malkinė krosnelė (yra galimybė įsirengti židinį)
• WC ir dušas kartu
PAPILDOMAI: • Statybos metai – 2005
• Butas nebuvo nuomojamas
• Pritaikytas vienos šeimos poilsiui
• Galimi pakeitimai pagal poreikį
Puikus pasirinkimas tiek poilsiui, tiek investicijai – vieta, kur dera gamta, ramybė ir jūros artumas.

Papildoma informacija

  • Balkonas
  • Butas per kelis aukštus
  • Detalus planas
  • Kondicionierius
  • Langai su stiklo paketais
  • Su baldais
  • Vieta automobiliui
  • Virtuvė sujungta su kamb.
  • Kiti brokerio objektai

Marina Giro

NT Brokerė

phone icona
SKAMBINK!
+370 698 44 345

PLANUOK APŽIŪRĄ






    Privatumo politika



    Objekto ID:
    193817
    Veiksmas:
    Pardavimas
    Kambarių sk.:
    2
    Aukštas:
    1
    Aukštų sk.:
    1
    Pastatas:
    Mūrinis
    Metai:
    2005
    Įrengimo lygis:
    Visa apdaila
    Šildymas:
    Elektrinis
    Plotas, m²:
    40.13