Nuomojamos patalpos R. Kalantos g. , Petrašiūnuose, Kaune, 600 kv.m ploto
Nuomojamos patalpos R. Kalantos g. , Petrašiūnuose, Kaune, 600 kv.m ploto
Petrašiūnai R. Kalantos g. Kauno m. sav. Kauno m.
IŠNUOMOJAMOS SANDĖLIAVIMO / GAMYBINĖS PATALPOS
Nuomojamos erdvios patalpos, nuo 500 m², puikiai tinkančios sandėliavimui, gamybai ar logistikai. Taip pat galima nuomoti papildomas 100 m² ofiso patalpas kurios yra antrame aukšte. Viskas gali būti pritaikyta pagal jūsų poreikius – nuo biuro iki sandėliavimo ar gamybinių veiklų.
Patalpos šviesios, aukštos, su naujai išlietomis pramoninio betono grindimis, naujas apšildytas stogas. Patalpų plotą galime pritaikyti pagal jūsų veiklą. Nuomojantis pas mus – galime padėti jūsų verslui su papildomomis investicijomis. Galimas finansavimas.
PRIVALUMAI:
– Strategiškai patogi vieta, šalia viešojo transporto (autobusų stotelė)
– Aptverta, saugi teritorija su automatiniais vartais
– Galimybė įsirengti automobilių aikštelę
– Elektros įvadas 40 kW, yra galimybė didinti
– Šiuo metu įrengimo lygis leidžia planuoti erdves pagal individualius poreikius
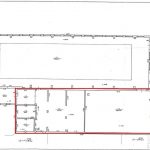
PASTATAS IR IŠPLANAVIMAS:
– Pagrindinės patalpos – pirmame aukšte
– Plotas – ~600/700 m²
– Žemės sklypas – 0.5831 ha.
– Didesnė salė – ~500 m², mažesnė ~150 m².
– Atnaujintas pastatas 2024 m.
– Bendras įėjimas į patalpas
BIURO PATALPOS:
– II aukštas – ~100 m².
Tinka tiek smulkiai, tiek stambesnei sandėliavimo veiklai:
– Įvairių prekių laikymui
– Prekių ir žaliavų sandėliavimui
– Logistikai, prekiniam paskirstymui
– Ilgalaikiam saugojimui
– E. prekybos sandėliui
Gamybai / Dirbtuvėms:
Dėl tvirtų grindų ir erdvės puikiai tinka:
– Baldų gamybai
– Surinkimo darbams
– Metalo ar medžio dirbtuvėms
– Elektronikos, technikos remontui
– Autoserviso pagalbinėms patalpoms
NUOMOS KAINA:
– Nuo 3,5 -4 €/m² + PVM.
kaina derinama individualiai apžiūros metu.
Nekilnojamojo turto brokerė
Greta Simonavičiūtė
+37065441384
Vilniaus Turtas
Papildoma informacija
- Elektra
- Geras privažiavimas
PLANUOK APŽIŪRĄ
- Objekto ID:
- 192962
- Veiksmas:
- Nuoma
- Kambarių sk.:
- 2
- Aukštas:
- 1
- Aukštų sk.:
- 2
- Pastatas:
- Blokinis
- Metai:
- 1967
- Įrengimo lygis:
- Visa apdaila
- Plotas, m²:
- 600.0

